Projekt

Nazwa projektu: GB31 projekt garażu blaszanego jednostanowiskowego z wiatą

Dane techniczne
Typ budynku
Kondygnacje
Powierzchnia użytkowa 34.00m2
Powierzchnia zabudowy 34.00m2
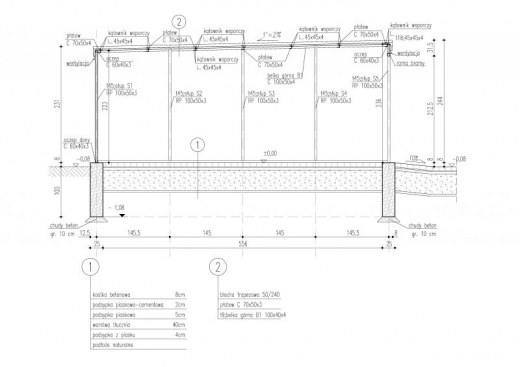
Kształt dachu 1°
Wysokość budynku w kalenicy 2.44m2
Minimalne wymiary działki 11.80m x 12.86m
Cena projektu:

699.00zł

Zamów projekt

Koszt budowy

Kalkulator kosztu budowy domu w cenie netto stan deweloperski bez fundamentu.
34 GB31 projekt garażu blaszanego jednostanowiskowego z wiatą https://szkieletowedomy.pl/projekt/wiaty-i-garaze/proarte-674/ parter i poddasze użytkowe lub piętro wielospadowy

    m2
    m2

    Standard wykonania

    ENERGO

    Dowiedz się więcej o standardzie ENERGO
    Szacowany koszt
    zł

    netto

    Prezentowana kalkulacja ma charakter informacyjny i nie stanowi oferty w rozumieniu Kodeksu Cywilnego. Podana cena jest orientacyjna i nie uwzględnia aktualnych promocji.

    Spersonalizowana wycena

    Prezentowana kalkulacja ma charakter informacyjny i nie stanowi oferty w rozumieniu Kodeksu Cywilnego.

    Opis

    Projekt garażu blaszanego jednostanowiskowego z wiatą.
    Brama garażowa o wymiarach 2,50x2,125m.
     
    Projekt garażu składa się z czterech egzemplarzy a w tym części architektonicznej, konstrukcyjnej i instalacji wewnętrznej elektrycznej. Do projektu dołączamy bezpłatną zgodę na wprowadzenie zmian, oświadczenie projektantów o wykonaniu projektu zgodnie z obowiązującymi normami i przepisami oraz kserokopie uprawnień projektantów wraz z aktualnym wpisem do izby.

    Rzuty

    Rzut 1

    1. Garaż……………………………16.13m2
    2. Wiata……………………………17m2

    Rzut 2

    Widoki



    Elewacje

    Projekt GB31 projekt garażu blaszanego jednostanowiskowego z wiatą

    Tak, chcę zamówić projekt GB31 projekt garażu blaszanego jednostanowiskowego z wiatą. Proszę o kontakt w tej sprawie

      Wyrażam zgodę na przetwarzanie moich danych osobowych w celu i zakresie niezbędnym do realizacji obsługi niniejszego zapytania*