Projekt

Nazwa projektu: TRYPOLIS szkielet drewniany

Dane techniczne
Typ budynku Dom
Kondygnacje
Powierzchnia użytkowa 159.65m2
Powierzchnia garażu 20.27m2
Powierzchnia zabudowy 95.58m2
Liczba pomieszczeń 4
Kształt dachu 40°
Wysokość budynku w kalenicy 8.08m2
Minimalne wymiary działki 19.80m x 16.10m
Cena projektu:

3799.00zł

Zamów projekt

Koszt budowy

Kalkulator kosztu budowy domu w cenie netto stan deweloperski bez fundamentu.
179.92 TRYPOLIS szkielet drewniany https://szkieletowedomy.pl/projekt/domy-jednorodzinne/proarte-935/ parter i poddasze użytkowe lub piętro wielospadowy

    m2
    m2

    Standard wykonania

    ENERGO

    Dowiedz się więcej o standardzie ENERGO
    Szacowany koszt
    zł

    netto

    Prezentowana kalkulacja ma charakter informacyjny i nie stanowi oferty w rozumieniu Kodeksu Cywilnego. Podana cena jest orientacyjna i nie uwzględnia aktualnych promocji.

    Spersonalizowana wycena

    Prezentowana kalkulacja ma charakter informacyjny i nie stanowi oferty w rozumieniu Kodeksu Cywilnego.

    Opis

    Rzuty

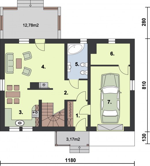
    Rzut 1

    1. Wiatrołap……………………………4.42m2
    2. Komunikacja……………………………8.45m2
    3. Łazienka……………………………6.05m2
    4. Kotłownia……………………………7.19m2
    5. Kuchnia z jadalnia……………………………11.05m2
    6. Garaż……………………………20.27m2
    7. Pokój dzienny……………………………21.22m2

    Rzut 2

    1. Komunikacja……………………………6.04m2
    2. Łazienka……………………………8.71m2
    3. Pokój……………………………11.66m2
    4. Pokój……………………………17.14m2
    5. Pokój……………………………14.61m2

    Widoki



    Elewacje

    Projekt TRYPOLIS szkielet drewniany

    Tak, chcę zamówić projekt TRYPOLIS szkielet drewniany. Proszę o kontakt w tej sprawie

      Wyrażam zgodę na przetwarzanie moich danych osobowych w celu i zakresie niezbędnym do realizacji obsługi niniejszego zapytania*